Ratgeber anfordern

Saniert, vermietet, renditestark – 138 m² Kapitalanlage in Barsinghausen / Bantorf

30890 Barsinghausen / Bantorf, Dachgeschosswohnung zum Kauf

Kontaktdaten

Objektdaten

  • Objekt-ID
    IHR-367
  • Objekttypen
    Dachgeschosswohnung, Wohnung
  • Adresse
    30890 Barsinghausen / Bantorf
  • Etage
    2
  • Etagen im Haus
    2
  • Wohnfläche ca.
    138 m²
  • Nutzfläche ca.
    35 m²
  • Zimmer
    6
  • Schlafzimmer
    4
  • Badezimmer
    1
  • Separate WC
    2
  • Wesentlicher Energieträger
    Öl
  • Baujahr
    1966
  • Zustand
    gepflegt
  • Status
    vermietet
  • Garagen­stellplatz
    1 Stellplatz
  • Verfügbar ab
    Nach Absprache
  • Käufer­provision
    3,57 zzgl. MwSt.
  • Kaufpreis
    295.000 EUR

Ausstattung / Merkmale

  • ✓ Kabel-/Sat-TV
  • ✓ Keller
  • ✓ Separates WC

Energieausweis

  • Energieausweistyp
    Verbrauchs­ausweis
  • Gültig bis
    30.07.2029
  • Gebäudeart
    Wohngebäude
  • Baujahr lt. Energieausweis
    2000
  • Primärenergieträger
    Öl
  • Endenergie­verbrauch
    95,00 kWh/(m²·a)
  • Energie­effizienz­klasse
    C

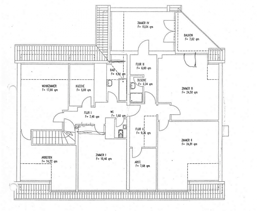
Objekt­beschreibung

Beschreibung

Saniert, vermietet, renditestark –
Diese großzügige Dachgeschosswohnung mit ca. 138 m² Wohnfläche in Barsinghausen-Bantorf ist eine bezugsfertige Kapitalanlage mit sofortigem Mieteingang. Die Wohnung ist seit Januar 2026 unbefristet vermietet und erwirtschaftet eine Jahresnettokaltmiete von 16.200 € – das entspricht einer anfänglichen Bruttomietrendite von knapp 5 %.

Das 1966 errichtete Mehrfamilienhaus mit vier Wohneinheiten wurde in Wohnungseigentum aufgeteilt. Die Wohnung selbst wurde 2022 umfassend kernsaniert: Elektrik, Bäder, Böden und Wände sind komplett erneuert.
Die hochwertige Einbauküche mit Bora-Induktionskochfeld und modernen Geräten ist im Kaufpreis enthalten.

Auf sechs Zimmer verteilen sich vier Schlafräume – darunter ein großzügiges Zimmer mit ca. 24,5 m² und eigenem en-suite-WC –, ein Wohn- und Esszimmer sowie ein weiterer Raum. Ergänzt wird der Grundriss durch ein Duschbad, ein Gäste-WC und einen Abstellraum. Zur Wohnung gehören eine Garage mit Sondernutzungsrecht an der Einfahrt sowie ein großer Kellerraum mit Fenster. Die gemeinschaftliche Waschküche steht ebenfalls zur Verfügung.

Die Gebäudefassade ist gedämmt, die Beheizung erfolgt über eine gemeinschaftliche Öl-Zentralheizung (Baujahr 1994). Die nicht umlagefähigen Nebenkosten liegen bei lediglich ca. 71 € monatlich.

Bantorf verbindet Ruhe mit Erreichbarkeit – und genau das macht die Wohnung als langfristige Kapitalanlage so interessant. Der Glasfaseranschluss ist bereits vorhanden und macht die Wohnung besonders attraktiv für Mieter im Homeoffice. Die S-Bahn bringt Berufspendler werktags im Halbstundentakt nach Hannover, die Autobahn ist nur wenige Hundert Meter entfernt. Gleichzeitig liegt der Deister als Naherholungsgebiet direkt vor der Tür. Einkaufsmöglichkeiten wie das Edeka-Center sind fußläufig erreichbar. Eine Lage, die nachhaltig Mieter anzieht.

Ausstattung

  • Dachgeschosswohnung in 2022 umfangreich saniert (Bäder, Elektrik, Böden)
  • ca. 138 m² Wohnfläche
  • vermietet seit 01.01.2026
  • Jahresnettokaltmiete: 16.200 €
  • Nichtumlagefähige Nebenkosten: ca. 71€mtl.
  • gute Verkehrsanbindung
  • großzügiges Wohn- und Esszimmer
  • 4 Schlafzimmer
  • 1 Badezimmer mit Dusche
  • 2 Gäste-WCs davon eines en-suite-WC
  • 1 Abstellraum
  • moderne Einbauküche inkl. hochwertigen Elektrogeräten (Bora Induktionsfeld)
  • Glasfaseranschluss vorhanden
  • großzügiger Kellerraum mit Fenster
  • gemeinschaftliche Waschküche im Keller
  • Garage mit Einfahrt als Parkplatzmöglichkeit

Sonstiges

Wichtige Hinweise zu diesem Exposé:
Dieses Exposé dient der Vorinformation und als Marketinginstrument. Bitte beachten Sie folgende Punkte:

KI-Einsatz: Bildmaterial und Texte wurden teilweise mittels Künstlicher Intelligenz (z. B. Visualisierungen) optimiert. Diese dienen der Veranschaulichung und sind nicht als tatsächliche Beschaffenheit zu verstehen.

Grundlage: Sämtliche Angaben basieren auf Informationen Dritter; eine Gewähr für Richtigkeit oder Vollständigkeit ist daher ausgeschlossen. Ein Zwischenverkauf sowie Irrtümer bleiben ausdrücklich vorbehalten.

Rechtsgrundlage: Dieses Dokument ist keine vertragliche Grundlage. Als alleinige Rechtsgrundlage gilt ausschließlich der notariell abgeschlossene Kaufvertrag und die darin enthaltenen Beschaffenheitsvereinbarungen.

Lage

Bantorf verbindet ländliche Ruhe mit hervorragender Erreichbarkeit – eine Kombination, die bei Mietern dauerhaft gefragt ist. Der Ortsteil der Stadt Barsinghausen liegt eingebettet zwischen Feldern, Grünflächen und gewachsener Einfamilienhausbebauung und bietet gleichzeitig eine Anbindung, die viele städtische Standorte nicht erreichen.

Die Autobahnauffahrt Bad Nenndorf (A2) ist weniger als einen Kilometer vom Objekt entfernt – Hannover, Minden oder das gesamte überregionale Straßennetz sind damit in wenigen Minuten erreichbar. Für Berufspendler ohne Auto liegt der S-Bahnhof Bantorf fußläufig in wenigen Hundert Metern Entfernung. Die Linien S1 und S2 verkehren werktags im Halbstundentakt und bringen Fahrgäste in rund 35 bis 50 Minuten zum Hauptbahnhof Hannover. Ergänzend bestehen Busverbindungen nach Barsinghausen und Bad Nenndorf. Die Bundesstraße 65 verläuft direkt durch den Ort.

Einkaufsmöglichkeiten des täglichen Bedarfs wie das Edeka-Center sind in unmittelbarer Nähe vorhanden. Kindergärten und eine Grundschule befinden sich im näheren Umkreis, weiterführende Schulen und Fachärzte im Stadtzentrum von Barsinghausen. Direkt vor der Tür beginnt der Deister als Naherholungsgebiet – ideal zum Wandern, Radfahren oder Spazierengehen.

Kindergarten 900 m | Grundschule 1,80 km | Realschule 4,50 km | Gymnasium 4,50 km | Autobahn 300 m | Zentrum 4,60 km 

Die dargestellte Position der Immobilie ist nur eine ungefähre Angabe.

Direktanfrage

* Pflichtangaben
 SSL-verschlüsselt
Immobiliendaten-Import und Darstellung für WordPress: WP-ImmoMakler
Ratgeber anfordern
Ratgeber anfordern
Direkt beraten lassen: 05105 591 46 01