Ratgeber anfordern

Oststadt-Investmentpaket: Wohnen / Gewerbe / Garagen in Bestlage

30161 Hannover / Oststadt, Sonstige zum Kauf

Kontaktdaten

Objektdaten

  • Objekt-ID
    IHR-373
  • Objekttyp
    Sonstige
  • Adresse
    30161 Hannover / Oststadt
  • Etagen im Haus
    3
  • Wohneinheiten
    1
  • Wohnfläche ca.
    216,01 m²
  • Vermietbare Fläche ca.
    216,01 m²
  • Zimmer
    9
  • Schlafzimmer
    2
  • Badezimmer
    5
  • Balkone
    2
  • Terrassen
    1
  • Heizungsart
    Etagenheizung
  • Wesentlicher Energieträger
    Gas
  • Baujahr
    1920
  • Zustand
    modernisiert
  • Garagen­stellplätze
    3 Stellplätze
  • Verfügbar ab
    Nach Absprache
  • Käufer­provision
    3,57 inkl. MwSt.
  • Hausgeld
    387,00 EUR
  • X-fache Miete
    37,38
  • Mieteinnahmen (Ist)
    31.968 EUR pro Jahr
  • Mieteinnahmen (Soll)
    51.000 EUR pro Jahr
  • Kaufpreis
    1.195.000 EUR

Ausstattung / Merkmale

  • ✓ Balkon
  • ✓ Keller
  • ✓ Terrasse

Energieausweis

  • Energieausweis
    nicht erforderlich

Objekt­beschreibung

Beschreibung

Oststadt Immobilienensemble – Wohnen in Bestlage mit stabilen Mieteinnahmen

In einer der begehrtesten Wohnlagen Hannovers präsentiert sich dieses besondere Immobilienensemble, bestehend aus einer hochwertig kernsanierten Altbauwohnung (120 m²), einer vermieteten Gewerbeeinheit (ca.75 m²), 3 zusätzliche vollausgebaute Räume im Souterrain (21 m²) sowie drei Garagen. Die Verbindung aus stilvollem Wohnen, ausgebauten Zusatzflächen und planbaren Mieteinnahmen schafft eine seltene Kombination aus Lebensqualität und wirtschaftlicher Substanz.

Wohnung (ca. 120 m²) und ausgebaute Nutzfläche im Untergeschoss

Die Wohnung im Erdgeschoss umfasst ca. 120 m² Wohnfläche und wurde im Jahr 2015 vollständig kernsaniert. Im Jahr 2022 wurde eine neue Etagenheizung installiert. Hohe Decken, großzügige Raumproportionen und ein offener Kamin unterstreichen den charakteristischen Altbaucharme. Der offen gestaltete Wohn- und Essbereich lässt sich durch eine hochwertige Schiebetür flexibel zonieren. Zwei gut geschnittene Schlafzimmer ermöglichen unterschiedliche Nutzungskonzepte.

Besonders komfortabel zeigt sich die durchdachte Bäderstruktur: Das Hauptschlafzimmer verfügt über ein en-suite-Bad mit Badewanne und Dusche. Ergänzt wird dies durch ein weiteres modernes Duschbad sowie ein separates Gäste-WC. Mehrere Balkone und eine Terrasse zum ruhigen Innenhof erweitern den Wohnraum nach außen und schaffen geschützte Rückzugsorte mitten in der Stadt.
Ein Kellerraum ergänzt das Platzangebot.

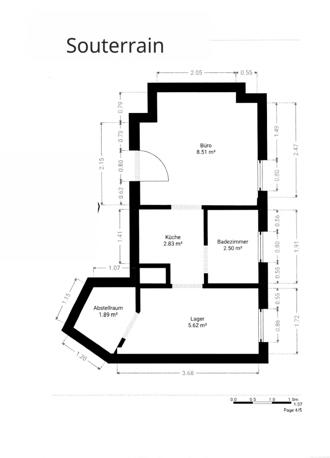
Zusatzräume im Souterrain mit eigenem Eingang:

Zusätzlich zur Wohnfläche steht im Untergeschoss eine ausgebaute Nutzfläche von ca. 21 m² zur Verfügung. Diese Fläche ist baurechtlich nicht als Wohnraum genehmigt, bietet jedoch eine hochwertige und vielseitige Nutzungsmöglichkeit.
Die Räume sind komfortabel ausgebaut und verfügen über ein eigenes Duschbad sowie eine integrierte Küchenzeile. Damit eignet sich dieser Bereich ideal als Büro, Atelier, Hobbyraum, Fitnessbereich oder separate Arbeitszone. Für Selbstständige oder anspruchsvolle Homeoffice-Konzepte entsteht hier eine seltene Möglichkeit, Wohnen und Arbeiten in einem Objekt zu verbinden.

Laden / Gewerbeeinheit:

Die ca. 75 m² große Gewerbeeinheit im Erdgeschoss ist langfristig an einen etablierten Sushi-Lieferdienst vermietet. Die Jahresnettokaltmiete beträgt ca. 31.000 €. Der Laden verfügt über eine eigene Gastherme aus dem Jahr 2015, wodurch eine klare technische Trennung zwischen Wohn- und Gewerbebereich gewährleistet ist. Die bestehende Vermietung sorgt für stabile Einnahmen und reduziert die laufende Belastung des Gesamtensembles erheblich.

Garagen:

Zum Angebot gehören drei Garagen in unmittelbarer Nähe des Gebäudes. Eine Garage ist der Gewerbeeinheit zugeordnet, eine wird derzeit eigengenutzt und eine weitere ist mit einer Wallbox ausgestattet. In der Oststadt sind Stellplätze ausgesprochen rar und entsprechend wertstabil – dieser Bestandteil des Angebots besitzt daher eine eigenständige Qualität.

Das Gebäude umfasst insgesamt fünf Wohneinheiten. Die straßenseitige Fassade steht unter Denkmalschutz und verleiht dem Ensemble seinen repräsentativen Charakter.

Hinweis: Bei der ausgewiesenen Gesamtfläche handelt es sich um die kombinierte Fläche aus Wohn- und Gewerbeeinheit. Die Nutzfläche im Untergeschoss ist nicht als Wohnfläche genehmigt.

Dieses Immobilienensemble richtet sich insbesondere an Eigennutzer, die die bevorzugte Lage der Oststadt schätzen und gleichzeitig von stabilen Mieteinnahmen profitieren möchten – mit der Perspektive, Wohnen, Arbeiten und Investition in einem Objekt zu vereinen.

Ausstattung

Wohnung

  • ca. 120 m² Wohnfläche
  • vollständige Kernsanierung im Jahr 2015
  • neue Etagenheizung aus 2022
  • hohe Altbaudecken und großzügige Raumaufteilung
  • offener Wohn- und Essbereich mit hochwertiger Schiebetür
  • hochwertige Einbauküche mit großzügigem Essbereich
  • zwei Schlafzimmer
  • en-suite-Bad mit Badewanne und Dusche
  • weiteres modernes Duschbad
  • separates Gäste-WC
  • Kaminofen
  • mehrere Balkone sowie Terrasse zum ruhigen Innenhof
  • stilvolle Innenarchitektur und ausgewählte Materialien
  • 2 Garagen jeweils mit eigenem Grundbuch

Souterrain Räume

  • zusätzlich ca. 21 m² im Untergeschoss
  • voll ausgebaut mit Duschbad und Küchenzeile
  • mit eigenem Zugang vom Hinterhof
  • vielseitig nutzbar als Büro, Atelier, Hobby- oder Fitnessbereich

Gewerbeeinheit / Laden

  • ca. 75 m² Nutzfläche im Erdgeschoss
  • 31.968,00 € Jahresnettokaltmiete
  • eigene Gastherme (Baujahr 2015)
  • funktionale Raumaufteilung für gastronomische Nutzung
  • stabile und planbare Pachteinnahmen
  • Pachtvertrag läuft fest bis zum 31.12.2035
  • 1 Garage mit eigenem Grundbuch der Gewerbeeinheit zugeordnet

Gebäude / Umfeld

  • gepflegter Altbau der Jahrhundertwende
  • insgesamt fünf Wohneinheiten im Gebäude
  • straßenseitige Fassade denkmalgeschützt
  • ruhige und kooperative Eigentümerstruktur
  • ausgezeichnete Infrastruktur und Verkehrsanbindung
  • fußläufig zur Lister Meile und zur Eilenriede
  • begehrte Wohn- und Geschäftslage in der Oststadt

Sonstiges

Wichtige Hinweise zu diesem Exposé:
Dieses Exposé dient der Vorinformation und als Marketinginstrument. Bitte beachten Sie folgende Punkte:

KI-Einsatz: Bildmaterial und Texte wurden teilweise mittels Künstlicher Intelligenz (z. B. Visualisierungen) optimiert. Diese dienen der Veranschaulichung und sind nicht als tatsächliche Beschaffenheit zu verstehen.

Grundlage: Sämtliche Angaben basieren auf Informationen Dritter; eine Gewähr für Richtigkeit oder Vollständigkeit ist daher ausgeschlossen. Ein Zwischenverkauf sowie Irrtümer bleiben ausdrücklich vorbehalten.

Rechtsgrundlage: Dieses Dokument ist keine vertragliche Grundlage. Als alleinige Rechtsgrundlage gilt ausschließlich der notariell abgeschlossene Kaufvertrag und die darin enthaltenen Beschaffenheitsvereinbarungen.

Lage

Diese Immobilie befindet sich in einer der beliebtesten Wohnlagen Hannovers, zentral im Stadtteil List/Oststadt gelegen. Die Umgebung vereint urbanes Leben mit hoher Lebensqualität und bietet alles, was man sich für den Alltag und darüber hinaus wünscht – fußläufig, in direkter Nähe und sehr gut erreichbar.

Einkaufsmöglichkeiten sind zahlreich vorhanden: Supermärkte, Bäckereien, Feinkostläden und kleinere Boutiquen bieten ein vielfältiges Angebot für den täglichen Bedarf. Die beliebte Lister Meile – eine charmante Einkaufsstraße mit vielen Einzelhandelsgeschäften, Cafés und Restaurants – ist nur wenige Gehminuten entfernt und lädt zum Bummeln, Verweilen und Genießen ein.

Für Familien mit Kindern ist die Lage besonders attraktiv: Mehrere Kindertagesstätten und Kitas befinden sich im nahen Umfeld, ebenso wie Grundschulen und weiterführende Schulen. Die kurzen Wege machen den Alltag mit Kindern angenehm und gut planbar.

Auch für Berufstätige und Pendler ist die Erreichbarkeit hervorragend. Der öffentliche Nahverkehr ist exzellent ausgebaut: Nur wenige Gehminuten entfernt befindet sich eine große ÖPNV-Drehscheibe mit verschiedenen Stadtbahn- und Buslinien, die direkt in die Innenstadt, zum Hauptbahnhof oder in andere Stadtteile führen. Die Fahrt ins Zentrum dauert nur wenige Minuten. Auch mit dem Auto ist man gut angebunden – über die nahegelegene Bundesstraße erreicht man die Autobahnen A2 und A7 in kurzer Zeit, sodass auch überregionale Ziele bequem erreichbar sind.

Die medizinische Versorgung ist durch eine Vielzahl von Arztpraxen und Apotheken im direkten Umfeld gesichert. Allgemeinmediziner, Fachärzte sowie Gesundheitsdienstleister sind in wenigen Minuten erreichbar und bieten eine umfassende Versorgung.

Darüber hinaus bietet die Lage ein breites Spektrum an Freizeit- und Erholungsmöglichkeiten. Der fußläufig erreichbare Stadtwald Eilenriede, einer der größten innerstädtischen Wälder Europas, lädt zu Spaziergängen, Joggingrunden, Fahrradtouren und erholsamen Stunden im Grünen ein. Für Kinder stehen mehrere Spielplätze in der Umgebung zur Verfügung, und Sporteinrichtungen wie Fitnessstudios, Schwimmbäder oder Vereine runden das Angebot ab. Auch die kulturelle Infrastruktur der Stadt – Theater, Museen, Konzerthäuser – ist schnell erreichbar.

Zusammengefasst bietet die Lage urbanen Komfort, hervorragende Infrastruktur und ein lebendiges Umfeld – ideal für alle, die zentrales Wohnen mit hoher Lebensqualität schätzen.

Kindergarten 300 m | Grundschule 400 m | Realschule 1,10 km | Gymnasium 800 m | Autobahn 15 km | Zentrum 1,80 km 

Die dargestellte Position der Immobilie ist nur eine ungefähre Angabe.

Direktanfrage

* Pflichtangaben
 SSL-verschlüsselt
Immobiliendaten-Import und Darstellung für WordPress: WP-ImmoMakler
Ratgeber anfordern
Ratgeber anfordern
Direkt beraten lassen: 05105 591 46 01